
100 ACORN AVE.
SOLD
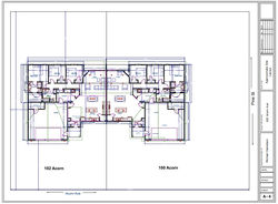
One level living at its finest! 100 & 102 Acorn Ave. is under construction and will be a compliment to the
growing neighborhood in London Hills. This twin home is a showstopper, incorporating well thought-out,
functional spaces inside and out. Special attention was paid to making sure that the two halves of this
twin home would have their own appeal from the outside. Individual, unique rooflines and 32” floor level
difference between the two units accomplishes this. Furnished on the inside with high quality appliances
and on-trend fixtures, this home will not disappoint.
We, at Danielson Home Company LLC. have gained a reputation for high quality workmanship. We put
quality ahead of speed and our customers appreciate it. We want our community to be beautiful,
so that is the product we are striving for.
These will be the 5th and 6th homes we have built in this neighborhood. Based on the reaction to the
previous three, we believe you should check it out soon! This home will be move-in ready by or before
June 15, 2024. Please E-mail Michael at danielsonhomeco@gmail.com for more information.
​
*the camera photos below are from a home with the exact layout as 100 Acorn Ave., but are not from this exact unit*
ï‚· -1807 sq/ft
ï‚· -Lawn Irrigation
ï‚· -Sod Front and Back Yard
ï‚· -3bed, 2 bath
ï‚· -230V Electric Fireplace
ï‚· -Custom Privacy Fence
ï‚· -LP Smartsiding
-Storm Shelter
ï‚· -Heated/Insulated Garage
ï‚· -Partially Covered 16ft x 12ft Patio
ï‚· -GE Appliances [Color: Slate]
ï‚· -Gas Convection Oven
ï‚· -7ft 9in x 3ft Kitchen Island
-9ft Ceilings
-Quartz Countertops
-Vaulted Kitchen and Living Areas
-Low maintenance edging and rock around entire home
-18ft Garage Door
-Kitchen Disposal
-Solid concrete common wall
for maximum protection from
sound penetration
![]() | ![]() | ![]() | ![]() |
|---|---|---|---|
![]() | ![]() | ![]() | ![]() |
![]() | ![]() | ![]() | ![]() |
![]() | ![]() | ![]() | ![]() |
![]() | ![]() | ![]() | ![]() |
![]() | ![]() | ![]() |























